(615) 293-4404
Sign Up Login

50 Total Photos [Click to View All]

312 Sea Tern Lane
Port St Joe, FL 32456

$359,900 - Status: Active
Bed Icon Beds: 3
Bath Icon Baths: 2 full 1 partial
Sq Feet Icon SQFT (H&C): 1,460
MLS Icon MLS# 788354

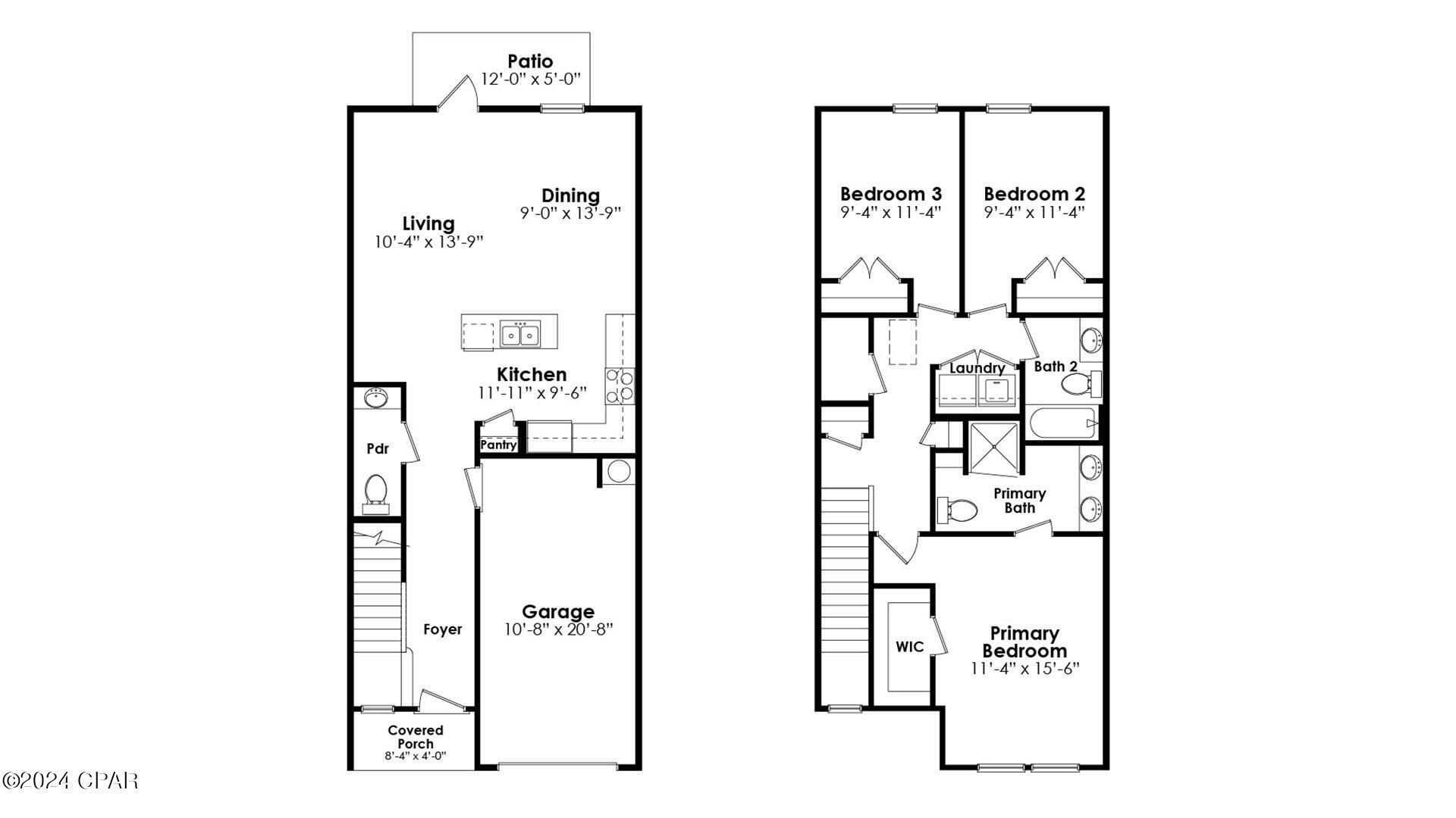
Welcome to 312 Sea Tern Lane, a new home at WindMark Townhomes located in the highly visited Port Saint Joe, Florida. The Sabal Townhome interior floorplan features 3 bedrooms and 2. 5 bathrooms with a 1-car garage. On the outside of these units, you will see quality Color-Plus Hardie Board exteriors which is uniquely engineered to stand up to the harshest elements from wind, rain, fire, freezing temperatures, and hail. Complemented by prairie-style doors and 30-year dimensional shingles. Convenience meets security with steel garage doors equipped with openers, weatherproof outlets, hose bibs, and Kwikset deadbolts on all exterior doors. The Windmark community features underground utilities making it less susceptible to damage from severe weather leading to fewer outages, quicker restoration, and more reliable service. As you enter inside, you will feel right at home with beautiful EVP flooring at your feet, leading you to the open living room and kitchen or the spacious upstairs. In the kitchen and bathroom, you will find gorgeous quartz countertops, white cabinets with brushed nickel hardware, and stainless-steel appliances in the kitchen. Stay cool at the beach with energy-efficient cooling and heating systems, Low-E insulated windows with screens, and water-saving elongated commodes. For added security, every home comes equipped with a Safe Haven Surveillance system, Skybell doorbell, Honeywell thermostat, and DEAKO Smart Switches. Rest assured with a one-year builder's warranty from D. R. Horton and a ten-year structural warranty through RWC. Enjoy all the amenities the WindMark Beach community has to offer complete with beautiful new homes, local food, shopping, boardwalks, and beach access! Windmark Beach amenities includes two pools, BBQ grills, 11 dedicated beach accesses, the village center, boardwalk, and is pet friendly! The community is golf cart friendly, and dogs are allowed on the beach in Windmark! Stop by our model home to experience WindMark Beach Townhomes today. Located directly across from the Gulf, you will find beautiful beaches within walking distance, and local restaurants close by. These homes offer easy access to Tyndall Air Force Base (21. 7 miles away), Panama City Beach (39 miles away), and downtown Port St. Joe (only 4 miles away).

Property Features

MLS#: 788354
Zip: 32456
Subdivision: Windmark
Development: 0704 - Gulf County - Port St Joe
Property Type: Residential
Cooling: Central Air, Ceiling Fan(s)
Garage: 1
Heating: Central, Electric, Forced Air
Home Style: Craftsman
Lot Size:
Roof Type: Shingle
Stories: 2.0
Year Built: 2026
SQFT (H&C): 1,460

Feature Descriptions

Accessibility: Smart Technology
Appliances: Electric Range, Electric Water Heater, Plumbed For Ice Maker
Association Amenities: Beach Rights, Game Room, Gazebo, Barbecue, Picnic Area
Community Features: Barbecue, Beach, Clubhouse, Conference/Meeting Room, Fitness Center, Game Room, Playground, Park, Pool, Shopping, Community Pool, Short Term Rental Allowed
Exterior: HardiPlank Type
Exterior Features: Patio, Rain Gutters
Flooring: Luxury Vinyl Plank
Interior Features: Smart Home, Smart Thermostat
Lot Description: Cul-De-Sac, Sprinkler System, Paved
Lot Dimensions: 20x89
Parcel#: 04227-038R
Parking: Additional Parking, Garage, Garage Door Opener
Parking Notes: Additional Parking, Garage, Garage Door Opener
Patio/Porch: Patio, Covered, Porch
Pool: Community
Security: yes
Security: Carbon Monoxide Detector(s), Firewall(s), Security System, Smoke Detector(s), Security Service
Sewer: Public Sewer
Special View Info: Gulf
Utilities: Cable Connected, Electricity Available, High Speed Internet Available, Underground Utilities
Window: Double Pane Windows

Local Schools

High School: Port St. Joe
Middle School: Port St. Joe
Elementary School: Port St. Joe

312 Sea Tern Lane | MLS# 788354

This home located at 312 Sea Tern Lane , Port Saint Joe, FL 32456 is currently listed for sale with an asking price of $359,900. This property was built in 2026 and has 3 bedrooms and 2 full and 1 partial baths with 1460 sq. ft. Sea Tern Lane is located in the Windmark subdivision. Search Windmark real estate on tbraun.beachybeach.com today.

Listed By / Shown By

Listed By

Agency Name: DR Horton Realty of Emerald Coast, LLC

Shown By

Agent Name: Tara Braun
Agent Phone: (615) 293-4404
Agency Title: Beachy Beach Real Estate

IDX logo

Ask a Question

Ask a Question
Disclaimer: All information deemed reliable but not guaranteed. All properties are subject to prior sale, change or withdrawal. Neither listing broker(s) or information provider(s) shall be responsible for any typographical errors, misinformation, misprints and shall be held totally harmless. Listing(s) information is provided for consumers personal, non-commercial use and may not be used for any purpose other than to identify prospective properties consumers may be interested in purchasing. Information on this site was last updated 04/14/2026. The listing information on this page last changed on 04/14/2026. The data relating to real estate for sale on this website comes in part from the Internet Data Exchange program of Delta Media Group MLS (last updated Tue 04/14/2026 1:47:33 AM EST) or Emerald Coast MLS (last updated Tue 04/14/2026 12:05:25 AM EST) or Central Panhandle Association of Realtors (last updated Tue 04/14/2026 1:17:19 AM EST). Real estate listings held by brokerage firms other than Beachy Beach Real Estate may be marked with the Internet Data Exchange logo and detailed information about those properties will include the name of the listing broker(s) when required by the MLS. All rights reserved.
Privacy Policy / DMCA Notice / ADA Accessibility

Login to My Homefinder

Pixel